Whitehead Close, Greenfield, Saddleworth Whitehead Close, Greenfield, Saddleworth

Whitehead Close, Greenfield, Saddleworth

2 bedroom Duplex for sale

£300,000

  • 2 bedroom
  • 2 bathroom
  • 1 reception

Key Features

  • STONE BUILT DUPLEX APARTMENT
  • FIRST FLOOR
  • TWO DOUBLE BEDROOMS
  • EN-SUITE TO MASTER
  • OPEN PLAN LIVING / DINING
  • MEZZANINE
  • GARAGE & DRIVEWAY
  • SPACIOUS
  • GREENFIELD VILLAGE
  • STUNNING & SOUGHT AFTER LOCATION

Description

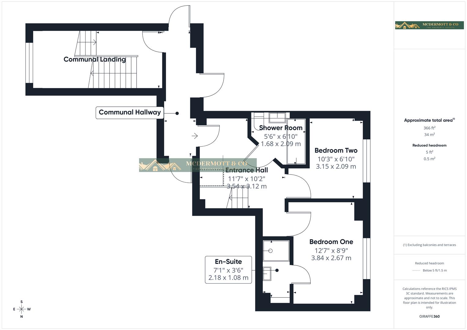
Communal Entrance

Secure intercom main entrance. A bright and well-maintained communal area featuring a modern staircase with secure metal balustrade, ample natural light from a large window.
Stairs lead from the hall to the first floor.

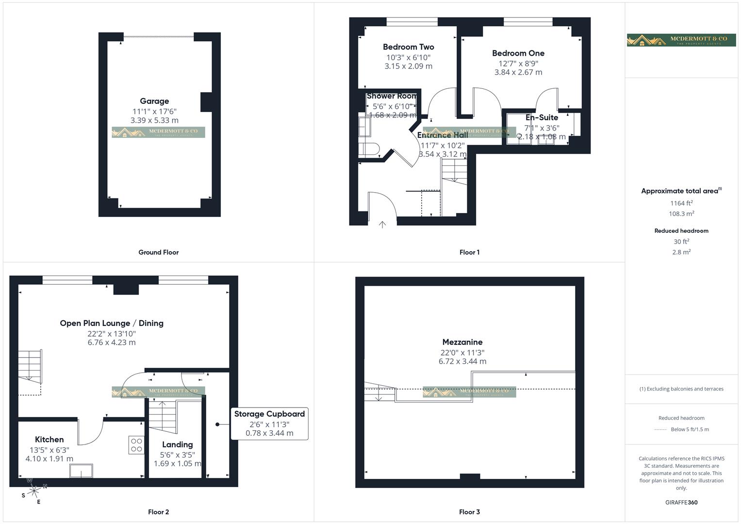
Entrance hall (3.54 x 3.12)

Carpeted, column radiator, ceiling spotlights, neutral decor, under stairs storage, access to bedrooms & main shower room, stairs lead up to second floor.

Shower room (1.68 x 2.09)

Modern & compact family shower room with a clean & crisp minimalist design.
Fully tiled in large, white wall tiles with a subtle marble effect. Grey floor tiles, Walk-in shower with a clear glass screen and matte black fixtures, including a rainfall-style showerhead and a handheld attachment, low level wc, vanity sink basin, towel warmer and a wall cabinet for storage.
Lighting is recessed into the ceiling, giving an even, modern illumination, and there’s also an extractor vent for ventilation.

Bedroom One (3.84 2.67)

Large multi-pain window-offering pleasant views and natural light, vertical blinds. Neutral decor, ceiling fan with an integrated light fixture . Carpeted, column radiator

En-suite (2.18 x 1.08)

Clean & crisp minimalist design. Fully tiled walls in large, white tiles with a subtle marble effect. Tiled flooring, walk-in shower with a clear glass screen and matte black fixtures, including a rainfall-style showerhead and a handheld attachment, low level WC & vanity sink basin. Lighting is recessed into the ceiling, giving an even, modern illumination, and there’s also an extractor vent for ventilation.

Bedroom Two (3.15 x 2.09)

Large multi-pain window-offering pleasant views and natural light, roller blind, carpeted, neutral decor, column radiator, ceiling light.

Stairs & Landing (1.69 x 1.05)

carpeted, wooden balustrade, ceiling light, neutral decor.

Storage Cupboard (0.76m x 3.43m)

carpeted, water tank.

Open plan Lounge / Dining (6.76 x 4.23)

Stunning open plan room with vaulted ceiling and exposed feature oak beams, two large rear facing windows & two large velux roof light providing an abundance of natural light, carpeted, two storage heaters, two ceiling lights. Neutal decor. Stairs lead off to mezzanine level.

Kitchen (4'10 x 1.91)

A stylish, modern kitchen featuring sleek white cabinetry, contrasting black tiled splashbacks, and ample worktop space. Fully equipped with integrated fridge freezer, electric oven & hob and overhead extractor. Practical storage and wine rack. vinyl flooring, ceiling spotlights.

Mezzanine (6.71m x 3.43m)

open aspect large versatile and adaptable space, currently used as a home office, with views over the lower floor level and windows. Carpeted, neutral decor, ceiling lights.

Garage (3.39 x 5.33)

Integral garage on the ground floor of the building, up and over door, power and lighting. Providing secure off road parking or ideal for storage. There is further parking on the private driveway directly infront of the garage.

External

Well kept and maintained communal areas surround the beautiful development.

Tenure

Leasehold 999 years from 2004 with an annual ground rent of £150

Service Charge

Service charge of £100 per month.

Stamp Duty Land tax

Residential property rates
You usually pay Stamp Duty Land Tax (SDLT) on increasing portions of the property price when you buy residential property, for example a house or flat.
The amount you pay depends on:
• when you bought the property
• how much you paid for it
• whether you’re eligible for relief or an exemption
Rates for a single property
You pay SDLT at these rates if, after buying the property, it is the only residential property you own.

You will usually pay 5% on top of these rates if you own another residential property.

Rates from 1 April 2025
Property or lease premium or transfer value SDLT rate
Up to £125,000 Zero
The next £125,000 (the portion from £125,001 to £250,000) 2%
The next £675,000 (the portion from £250,001 to £925,000) 5%
The next £575,000 (the portion from £925,001 to £1.5 million) 10%
The remaining amount (the portion above £1.5 million) 12%
Example
In April 2025 you buy a house for £295,000. The SDLT you owe will be calculated as follows:
• 0% on the first £125,000 = £0
• 2% on the second £125,000 = £2,500
• 5% on the final £45,000 = £2,250
• total SDLT = £4,750


Location


Floorplan

Floorplan Floorplan Floorplan Floorplan Floorplan

EPC

EPC for Whitehead Close, Greenfield, Saddleworth

Video Tour


Mcdermott & Co Property Agents - Saddleworth Branch

Similar Properties

Oldham Road, Denshaw, Saddleworth
For Sale

Oldham Road, Denshaw, Saddleworth

4 Bed End of terrace house For Sale
Guide price Offers over £380,000
Chew Valley Road, Greenfield, Saddleworth
Sold STC

Chew Valley Road, Greenfield, Saddleworth

2 Bed End of terrace house Sold STC
Guide price £320,000