Ashton Road, Failsworth Ashton Road, Failsworth

Ashton Road, Failsworth

3 bedroom Terraced House for sale

£265,000

  • 3 bedroom
  • 2 bathroom
  • 1 reception

Key Features

  • MID TERRACE NEW PRICE
  • THREE BEDROOMS
  • WELL PRESENTED
  • KITCHEN/DINER
  • UTILITY ROOM
  • DOWNSTAIRS WC
  • UPSTAIRS FAMILY BATHROOM
  • BEDROOM THREE LOFT BEDROOM
  • WOODHOUSES VILLAGE
  • EXTENDED TO THE REAR

Description

Entrance Vestibule (1.04m x 1.17m)

Laminate flooring, neutral decor.

Lounge (4.22m x 3.89m)

Front facing, laminate flooring, wooden blinds, radiator, neutral decor.

Kitchen/Diner (4.17m x 3.66m)

Rear facing, range of fitted wall and base units in white finish with complimentary wooden worktops. Inset sink and drainer with mixer taps over, extractor hood over, tiled splashback, integrated dishwasher, integrated microwave, laminate flooring, spotlights, radiator, neutral decor, under stairs storage, stairs off, door leading to utility room, patio doors leading to rear garden.

Utility Room (1.35m x 0.97m)

Side facing, plumbing for washer, tiled flooring, neutral decor, door leading to downstairs WC.

Downstairs WC (1.32m x 0.89m)

Rear facing, two piece bathroom suite in white comprising sink and toilet, heated chrome towel rail, fully tiled walls, tiled flooring, spotlights.

Stairs and Landing

Leading to all first floor rooms, carpeted.

Bedroom One (4.04m x 3.91m)

Front facing, carpeted, radiator, wooden blinds, built in wardrobes, neutral decor.

Bedroom Two (1.83m x 2.82m)

Rear facing, carpeted, radiator, storage cupboard.

Family Bathroom (2.08m x 1.98m)

Rear facing, three piece bathroom suite in white comprising sink and toilet, shower over bath, heated chrome towel rail, fully tiled, tiled flooring, shaving point.

Landing

Carpeted, radiator, neutral decor, stairs leading to bedroom three loft bedroom.

Stairs to Loft Room

Leading to bedroom three loft bedroom, carpeted, neutral decor.

Loft Bedroom Three (2.44m x 3.78m)

Carpeted, two velux windows, radiator, built in wardrobes, several built in cupboards, neutral decor.

External

To the front there is a paved small garden and to the rear garden and paved garden which is not overlooked and outside storage.

Tenure

The property is leasehold with the remainder of 999 years from 1894 with ground rent of seven shillings

Stamp Duty

Residential property rates
You usually pay Stamp Duty Land Tax (SDLT) on increasing portions of the property price when you buy residential property, for example a house or flat.
The amount you pay depends on:
• when you bought the property
• how much you paid for it
• whether you’re eligible for relief or an exemption
Rates for a single property
You pay SDLT at these rates if, after buying the property, it is the only residential property you own.

You will usually pay 5% on top of these rates if you own another residential property.

Rates from 1 April 2025
Property or lease premium or transfer value SDLT rate
Up to £125,000 Zero
The next £125,000 (the portion from £125,001 to £250,000) 2%
The next £675,000 (the portion from £250,001 to £925,000) 5%
The next £575,000 (the portion from £925,001 to £1.5 million) 10%
The remaining amount (the portion above £1.5 million) 12%
Example
In April 2025 you buy a house for £295,000. The SDLT you owe will be calculated as follows:
• 0% on the first £125,000 = £0
• 2% on the second £125,000 = £2,500
• 5% on the final £45,000 = £2,250
• total SDLT = £4,750


Location


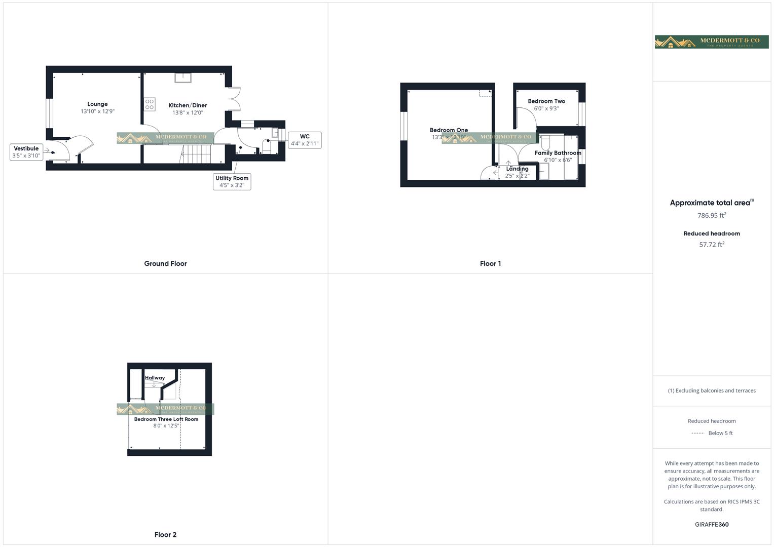
Floorplan

Floorplan

EPC

EPC for Ashton Road, Failsworth

Video Tour


Mcdermott & Co Property Agents - Failsworth Branch

Similar Properties

Clough Road, Failsworth, Manchester
For Sale

Clough Road, Failsworth, Manchester

3 Bed Semi-detached house For Sale
Guide price £251,950
Minor Street, Failsworth, Manchester
For Sale

Minor Street, Failsworth, Manchester

3 Bed Terraced House For Sale
Guide price £209,950
Valentine Street, Failsworth
For Sale

Valentine Street, Failsworth

3 Bed Terraced House For Sale
Guide price £215,000