Shaw Hall Bank Road, Greenfield, Saddleworth Shaw Hall Bank Road, Greenfield, Saddleworth

Shaw Hall Bank Road, Greenfield, Saddleworth

4 bedroom Detached house for sale

£474,995

  • 4 bedroom
  • 3 bathroom
  • 2 reception

Key Features

  • PERIOD DETACHED HOUSE
  • FOUR BEDROOM
  • THREE BATHROOMS
  • UNIQUE LAYOUT
  • HIGH CEILINGS
  • STUNNING VIEWS TO THE REAR
  • SPANNING FOUR FLOORS
  • GARAGE
  • DRIVEWAY
  • ADDITIONAL LAND CAN BE PURCHASED BY SEPERATE NEGOTIATION

Description

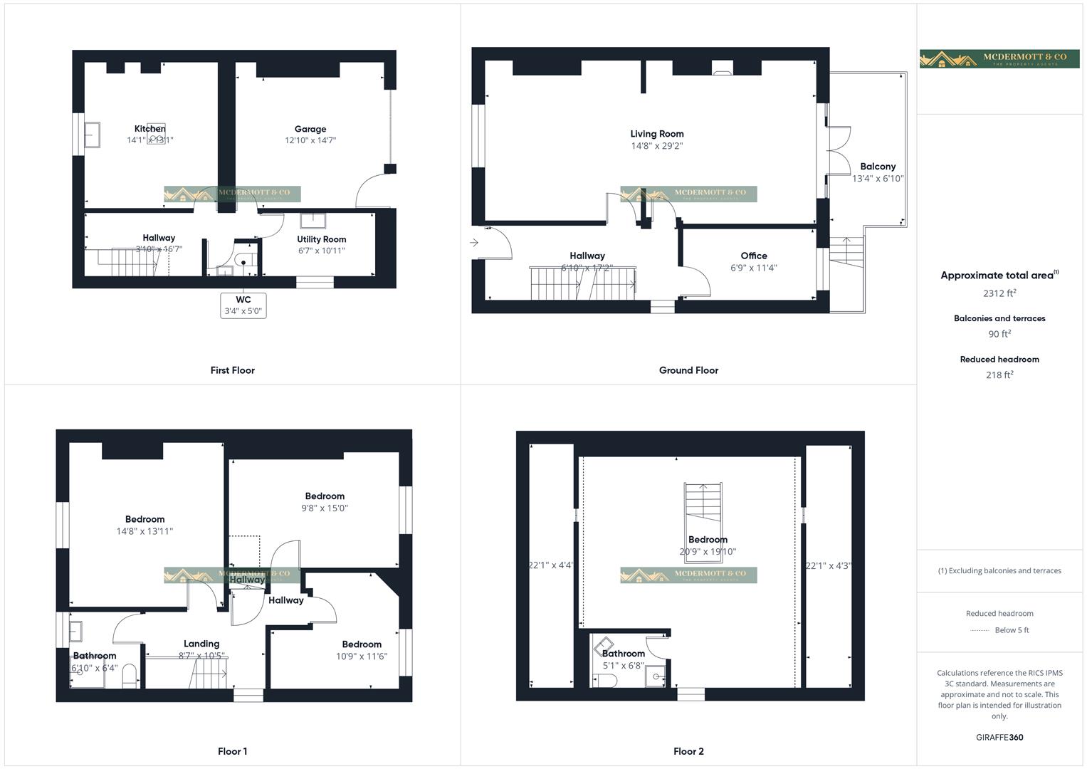
Entrance Hallway (2.08m x 5.23m)

Entering the property into a spacious hallway with high ceilings and original features, with stairs leading to the second floor and lower floor and doors leading the lounge/dining room and office.

Lounge/ Dining Room (4.47m x 8.89m)

This large dual aspect open plan room is currently being used as a dining space to the front and lounge to the rear with French door that open up to a balcony with outstanding views.

Balcony (4.06m x 2.08m)

Through double French doors off the lounge is a balcony with stunning views a perfect retreat.

Office (2.06m x 3.45m)

Rear facing room with beautiful views of the hills and countryside, this room offers a versatile space for family needs, currently being used as a office space, carpeted.

Stairs to Lower level floor

Carpeted stairs with handrail leading to lower level floor.

Lower Level floor Hallway (1.17m x 5.05m)

Located on the lower level with wood flooring, neutral decor with access to the kitchen, WC, utility room and garage.

Kitchen (4.29m x 3.99m)

A beautifully designed kitchen with an impressive centre island giving space for entertaining guests, the kitchen offers a range of wall and base units with complementary wood worktops a integrated fridge/freezer, integrated dishwasher, 2 x integrated electric ovens with an induction hob and built in extractor fan, vinyl wood flooring, spotlight lights and under counter lighting.

WC (1.02m x 1.52m)

Comprises of white WC and basin, radiator and vinyl wood flooring.

Utility Room (2.01m x 3.33m)

Located at the rear of the property is a conveniently located utility room with built in sink and units, plumbing for washing machine and space for a dryer with vinyl wood flooring.

Garage (3.91m x 4.45m)

Rear facing garage that opens up via a up and over style door to the driveway and rear garden, with electric and an additional door leading out to the garden.

Stairs & 1st floor landing (2.62m x 3.18m)

Carpeted stairs and landing with doors leading to the bathroom and bedrooms 1, 2 and 3, door with stair access to second floor master bedroom and en-suite.

Bedroom 2 (4.47m x 4.24m)

Front facing bedroom, carpeted with radiator and built in wardrobe unit.

Bedroom 3 (2.95m x 4.57m)

Rear facing bedroom over looking the back garden, stunning views of the countryside and the canal, carpeted and radiator.

Bedroom 4 (3.28m x 3.51m)

Rear facing bedroom with gorgeous views, carpeted with radiator.

Bathroom/Shower room (2.08m x 1.93m)

Front facing shower room, comprises of low level WC, basin and enclosed quadrant shower, tiled floor and part tiled walls, with underfloor heating, heated towel rail and spotlights.

Stairs to 2nd floor

Carpeted stairs with handrail to master bedroom and en-suite.

Master Bedroom (6.32m x 6.05m)

An impressive space with views to the front, rear and side of the property, carpeted with radiator and three large Velux windows exposing the running hills of Saddleworth. This room benefits for additional storage space running along both lengths of the bedroom in the eaves and an En-suite.

En-Suite (1.55m x 2.03m)

Master bedroom en-suite comprises of WC, vanity unit with built in basin and cupboards and enclosed electric shower unit, carpeted with tiled walls and heated towel rail and ventilation.

External

Externally the front of the property benefits from a small enclosed garden with a path leading to the front door, To the rear is a driveway that can accommodate a number of cars and a greenhouse. Stairs from the driveway lead up to the balcony and access to the side of the property.

Separate to the sale of the property there is an option to purchase a piece of land close by that is currently being used for home grown produce.

Tenure

We have been advised the property is Leasehold with zero ground rent payable.

Stamp Duty Land Tax

Residential property rates
You usually pay Stamp Duty Land Tax (SDLT) on increasing portions of the property price when you buy residential property, for example a house or flat.
The amount you pay depends on:
• when you bought the property
• how much you paid for it
• whether you’re eligible for relief or an exemption
Rates for a single property
You pay SDLT at these rates if, after buying the property, it is the only residential property you own.

You will usually pay 5% on top of these rates if you own another residential property.

Rates from 1 April 2025
Property or lease premium or transfer value SDLT rate
Up to £125,000 Zero
The next £125,000 (the portion from £125,001 to £250,000) 2%
The next £675,000 (the portion from £250,001 to £925,000) 5%
The next £575,000 (the portion from £925,001 to £1.5 million) 10%
The remaining amount (the portion above £1.5 million) 12%
Example
In April 2025 you buy a house for £295,000. The SDLT you owe will be calculated as follows:
• 0% on the first £125,000 = £0
• 2% on the second £125,000 = £2,500
• 5% on the final £45,000 = £2,250
• total SDLT = £4,750


Location


Floorplan

Floorplan Floorplan Floorplan Floorplan Floorplan

EPC


Video Tour


Mcdermott & Co Property Agents - Saddleworth Branch

Similar Properties

Buckley Street, Uppermill, Saddleworth
Sold STC

Buckley Street, Uppermill, Saddleworth

3 Bed Semi-detached house Sold STC
Guide price Offers over £500,000
Rimmon Close, Greenfield
Sold STC

Rimmon Close, Greenfield

4 Bed Town house Sold STC
Guide price £585,000