Gladstone Terrace Road, Greenfield Gladstone Terrace Road, Greenfield

Gladstone Terrace Road, Greenfield

2 bedroom Terraced House Sold STC

£214,950

  • 2 bedroom
  • 1 bathroom
  • 1 reception

Key Features

  • CHAIN FREE
  • TWO DOUBLE BEDROOMS
  • SPACIOUS TERRACE
  • STONE BUILT
  • COMMUNAL REAR GARDEN
  • IDEAL FIRST TIME BUYER HOME
  • FREEHOLD

Description

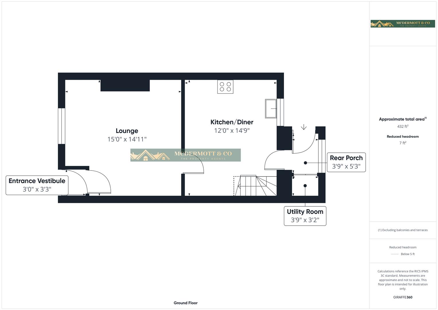
Entrance Vestibule (0.91m x 0.99m)

Carpeted, white painted walls , door leading into lounge.

Lounge (4.57m x 4.55m)

Front facing lounge featuring stone fire place, carpeted with neutral décor and radiator.

Kitchen/Diner (3.66m x 4.50m)

Rear facing kitchen with a range of wall and base units and complimentary work tops, integrated oven with gas hobs and over head extractor fan. wood laminate flooring and radiator, spacious under stairs storage with door leading to rear porch and stairs to first floor.

Rear Porch (1.14m x 1.60m)

Entrance from the rear of the property, White painted walls and tiled floor. Doors leading to the kitchen and utility room.

Utility Room (1.14m x 0.97m)

Storage space with shelving, boiler is situation here.

Bedroom 1 (4.57m x 4.06m)

Front facing with carpeted flooring, fitted wardrobes and radiator. Large window allowing light into the room.

Bedroom 2 (3.61m x 2.62m)

Rear facing bedroom with carpeted flooring, white walls and radiator.

Bathroom (2.21m x 1.83m)

Rear facing family bathroom, compromising of a 3 piece suite, white toilet, sink and bath with electric shower and screen. Fully tiled floor and walls with a black steel wall radiator.

External

Shared accessed rear garden. the property does have its own outside space for a garden shed, table and chairs etc.

Tenure

Freehold

Stamp Duty Land Tax

Residential property rates
You usually pay Stamp Duty Land Tax (SDLT) on increasing portions of the property price when you buy residential property, for example a house or flat.
The amount you pay depends on:
• when you bought the property
• how much you paid for it
• whether you’re eligible for relief or an exemption
Rates for a single property
You pay SDLT at these rates if, after buying the property, it is the only residential property you own.

You will usually pay 5% on top of these rates if you own another residential property.

Rates from 1 April 2025
Property or lease premium or transfer value SDLT rate
Up to £125,000 Zero
The next £125,000 (the portion from £125,001 to £250,000) 2%
The next £675,000 (the portion from £250,001 to £925,000) 5%
The next £575,000 (the portion from £925,001 to £1.5 million) 10%
The remaining amount (the portion above £1.5 million) 12%
Example
In April 2025 you buy a house for £295,000. The SDLT you owe will be calculated as follows:
• 0% on the first £125,000 = £0
• 2% on the second £125,000 = £2,500
• 5% on the final £45,000 = £2,250
• total SDLT = £4,750


Location


Floorplan

Floorplan Floorplan Floorplan

EPC

EPC for Gladstone Terrace Road, Greenfield

Video Tour


Mcdermott & Co Property Agents - Saddleworth Branch

Similar Properties

Huddersfield Road, Diggle, Saddleworth
For Sale

Huddersfield Road, Diggle, Saddleworth

3 Bed Cottage For Sale
Guide price £324,999
Beech Avenue, Greenfield, Saddleworth
Sold STC

Beech Avenue, Greenfield, Saddleworth

3 Bed Semi-detached house Sold STC
Guide price £299,950