Laburnum Avenue, Failsworth, Manchester Laburnum Avenue, Failsworth, Manchester

Laburnum Avenue, Failsworth, Manchester

4 bedroom Semi-detached bungalow for sale

£380,000

  • 4 bedroom
  • 3 bathroom
  • 2 reception

Key Features

  • FOUR BEDROOMS
  • BUNGALOW WITH DORMA
  • FOURTH BEDROOM / ANNEX
  • THREE BATHROOMS
  • DRIVEWAY FOR 2/3 CARS
  • REAR GARDEN WITH SUMMER HOUSE
  • MODERN THROUGHOUT
  • FREEHOLD

Description

Entrance Hallway (1.09m x 3.61m)

Entrance hallway with stairs off leading to the first floor, under stairs built in storage units, wood flooring, radiator and spotlights with neutral decor with access to all ground floor rooms.

Lounge (5.87m x 3.66m)

Front facing lounge with bay window, featuring log burning fire, wood flooring and radiator.

Hallway (2.08m x 0.91m)

Hallway, wood flooring, radiator and spotlights with neutral decor with access to all ground floor rooms.

Family Bathroom (1.91m x 2.54m)

Side facing modern bathroom, fully tiled comprises of white bath with shower unit and half shower screen, vanity basin and low level WC and heated towel rail.

Kitchen (4.39m x 3.78m)

Rear facing modern kitchen with a range of wall and base units in black gloss finished with complimentary worktops, double oven with gas hobs with splash back wall and large hood extractor fan, black inset sink and drainer, integrated dishwasher. tiled flooring, spotlights and radiator.

Utility Area (1.75m x 1.27m)

A convenient utility space with under counter space for washing machine and dryer, tiled flooring and radiator.

Bedroom 1 (4.24m x 2.82m)

First floor front facing bedroom, wood flooring with built in storage units and wardrobes, with radiator and spotlights.

En-Suite

En-suite shower room, comprises of enclosed shower with electric unit, vanity basin, low level WC, tiled flooring and spotlights.

Landing (1.32m x 0.84m)

Carpeted stairs and landing with access to bedroom 1 and en-suite.

Bedroom 2 (4.11m x 3.58m)

Rear facing bedroom, carpeted with radiator, bi-folding doors with access to the rear garden. New carpets and a re paint is being completed in January 2026.

Bedroom 3 (2.90m x 3.68m)

Front facing bedroom with bay window, wood flooring and radiator.

Bedroom 4/ Annex

Rear facing annex / bedroom, boasting its own en-suite with bi-folding doors leading to the rear garden. carpeted with radiator and spotlights.

En-suite

En-suite shower room, comprises of enclosed shower unit, basin and low level WC, with modern patterned floor tiles, spotlights and a heated towel rail.

Bathroom (3.28m x 1.19m)

Side facing modern fitted bathroom comprises of built in bath with shower head, Low level WC and vanity basin. fully tiled with spotlights and heated towel rail.

External

To the front of the property is a lawned garden area enclosed by a low brick wall and paved driveway with space of up to three vehicles, to rear is an enclosed private fenced garden with a lawned area and a raised paved area perfect for seating, the rear garden also boasts a small summer house with electrics and heating and a sperate garden shed.

Tenure

WE HAVE BEEN ADVISED THIS PROPERTY IS FREEHOLD

Stamp Duty

Residential property rates
You usually pay Stamp Duty Land Tax (SDLT) on increasing portions of the property price when you buy residential property, for example a house or flat.
The amount you pay depends on:
• when you bought the property
• how much you paid for it
• whether you’re eligible for relief or an exemption
Rates for a single property
You pay SDLT at these rates if, after buying the property, it is the only residential property you own.

You will usually pay 5% on top of these rates if you own another residential property.

Rates from 1 April 2025
Property or lease premium or transfer value SDLT rate
Up to £125,000 Zero
The next £125,000 (the portion from £125,001 to £250,000) 2%
The next £675,000 (the portion from £250,001 to £925,000) 5%
The next £575,000 (the portion from £925,001 to £1.5 million) 10%
The remaining amount (the portion above £1.5 million) 12%
Example
In April 2025 you buy a house for £295,000. The SDLT you owe will be calculated as follows:
• 0% on the first £125,000 = £0
• 2% on the second £125,000 = £2,500
• 5% on the final £45,000 = £2,250
• total SDLT = £4,750


Location


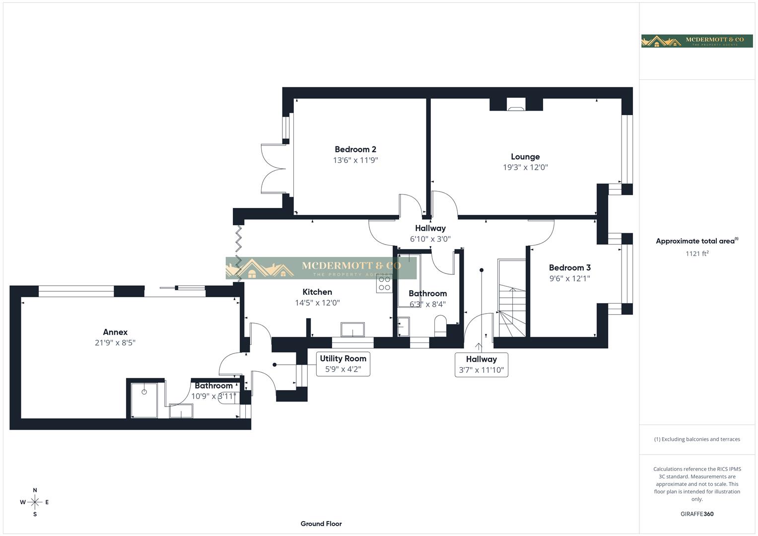
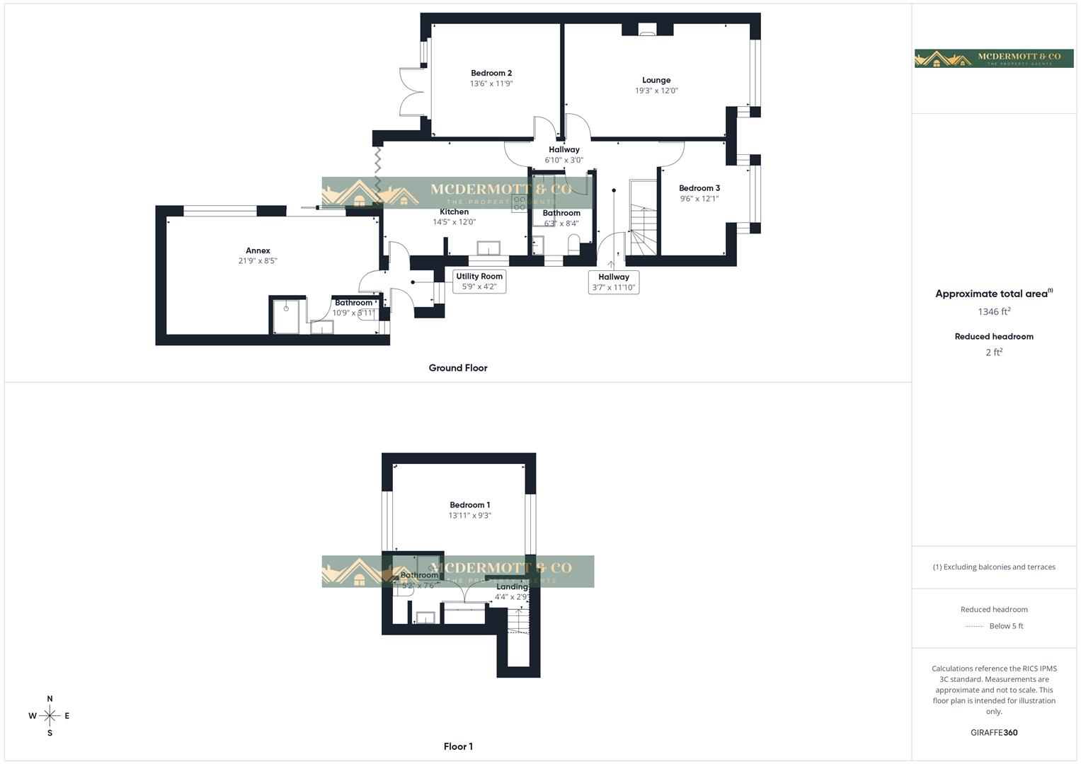
Floorplan

Floorplan Floorplan Floorplan

EPC

EPC for Laburnum Avenue, Failsworth, Manchester

Video Tour


Mcdermott & Co Property Agents - Failsworth Branch

Similar Properties

Plots 15, 16 & 23 The Pine, Bluebell Meadows, Woodhouses Village, Failsworth
For Sale

Plots 15, 16 & 23 The Pine, Bluebell Meadows, Woodhouses Village, Failsworth

4 Bed Detached house For Sale
Guide price £750,000
Plots 25 & 26 The Olive, Bluebell Meadows, Woodhouses Village, Failsworth
For Sale

Plots 25 & 26 The Olive, Bluebell Meadows, Woodhouses Village, Failsworth

4 Bed Detached house For Sale
Guide price £695,000
Plots 20 The Hazel, Bluebell Meadows, Woodhouses Village, Failsworth
Sold STC

Plots 20 The Hazel, Bluebell Meadows, Woodhouses Village, Failsworth

4 Bed Detached house Sold STC
Guide price £750,000