Kew Road, Failsworth Kew Road, Failsworth

Kew Road, Failsworth

2 bedroom Semi-detached house Sold STC

£199,950

  • 2 bedroom
  • 1 bathroom
  • 2 reception

Key Features

  • CHAIN FREE
  • SEMI DETACHED
  • TWO RECEPTION ROOMS
  • TWO DOUBLE BEDROOMS
  • DRIVEWAY FOR TWO CARS
  • SHOWER ROOM
  • GAS CENTRAL HEATING

Description

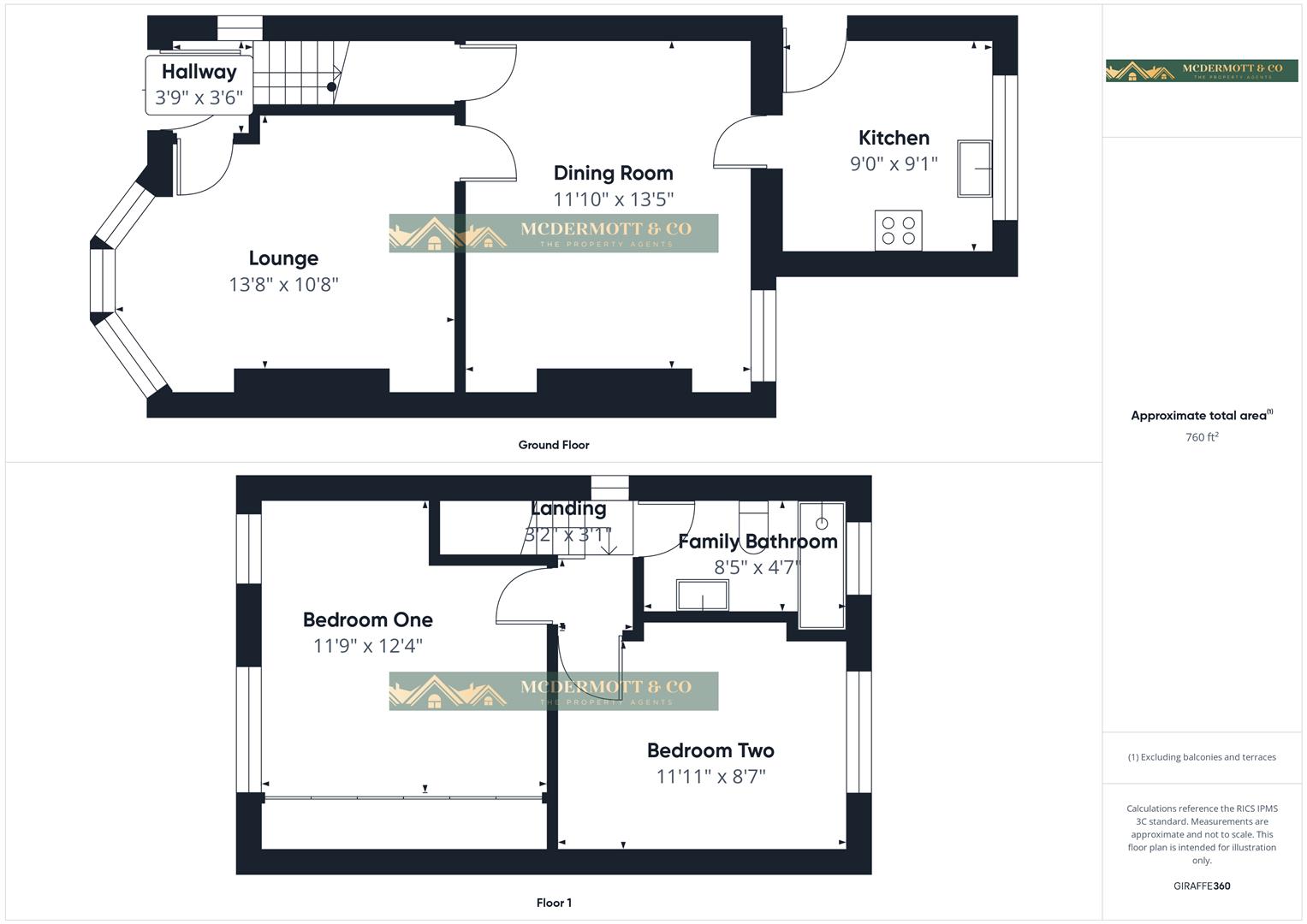
Entrance Hall (1.14m x 1.07m)

Entrance hall, window to side at the bottom of the stairs, vinyl flooring, radiator, neutral decor.

Lounge (4.17m x 3.25m)

Front facing into bay window, carpeted, two radiators, electric fire with surround and hearth, neutral decor.

2nd Reception/Dining Room (3.61m x 4.09m)

Rear facing, carpeted, electric fire, radiator, understairs storage cupboard.

Kitchen (2.74m x 2.77m)

Rear facing, range of fitted wall and base units in grey finish with complimentary white worktops. Inset sink and drainer with mixer taps over, free standing electric cooker with extractor hood over, tiled splashback, plumbing for dishwasher, plumbing for washer, laminate flooring, neutral decor, door to side leading to rear garden.

Stairs and Landing

Stairs leading to all first floor rooms, carpeted, neutral decor, landing - window to top of the stairs, carpeted, neutral decor, loft access.

Bedroom One (3.58m x 3.76m)

Front facing, two windows, carpeted, radiator, built in mirrored wardrobes, neutral decor.

Bedroom Two (3.63m x 2.62m)

Rear facing, carpeted, radiator, built in wardrobes and desk area, neutral decor.

Family Bathroom (2.57m x 1.40m)

Rear facing, three piece bathroom suite in white comprising sink and toilet, walk in shower enclosure, radiator, spotlights, fully tiled walls, laminate flooring.

External

To the front there is a paved driveway for two cars and a private rear garden with raised paved area and artificial grassed area.

Tenure

We have been advised by the vendors that the property is Leasehold for 990 years from 13th April 1934. Can buy and change to Freehold for £820.23.

Stamp Duty

Residential property rates
You usually pay Stamp Duty Land Tax (SDLT) on increasing portions of the property price when you buy residential property, for example a house or flat.
The amount you pay depends on:
• when you bought the property
• how much you paid for it
• whether you’re eligible for relief or an exemption
Rates for a single property
You pay SDLT at these rates if, after buying the property, it is the only residential property you own.

You will usually pay 5% on top of these rates if you own another residential property.

Rates from 1 April 2025
Property or lease premium or transfer value SDLT rate
Up to £125,000 Zero
The next £125,000 (the portion from £125,001 to £250,000) 2%
The next £675,000 (the portion from £250,001 to £925,000) 5%
The next £575,000 (the portion from £925,001 to £1.5 million) 10%
The remaining amount (the portion above £1.5 million) 12%
Example
In April 2025 you buy a house for £295,000. The SDLT you owe will be calculated as follows:
• 0% on the first £125,000 = £0
• 2% on the second £125,000 = £2,500
• 5% on the final £45,000 = £2,250
• total SDLT = £4,750


Location


Floorplan

Floorplan

EPC

EPC for Kew Road, Failsworth

Video Tour


Mcdermott & Co Property Agents - Failsworth Branch

Similar Properties

Plots 4,5,7,8,18,19,21 & 22 The Birch, Bluebell Meadows, Woodhouses Village, Failsworth
For Sale

Plots 4,5,7,8,18,19,21 & 22 The Birch, Bluebell Meadows, Woodhouses Village, Failsworth

4 Bed Semi-detached house For Sale
Guide price £495,000
Rosehay Lane, Failsworth, Manchester
Sold STC

Rosehay Lane, Failsworth, Manchester

3 Bed Semi-detached house Sold STC
Guide price £150,000