Grimshaw Avenue, Failsworth Grimshaw Avenue, Failsworth

Grimshaw Avenue, Failsworth

4 bedroom Semi-detached house Sold STC

£350,000

  • 4 bedroom
  • 2 bathroom
  • 2 reception

Key Features

  • CHAIN FREE
  • DOUBLE EXTENDED SEMI DETACHED
  • FOUR BEDROOMS - THREE ARE DOUBLES
  • TWO RECEPTION ROOMS - LOUNGE AND DINING ROOM
  • TWO BATHROOMS - MAIN BATHROOM AND EN-SUITE TO MASTER
  • MODERNISED THROUGHOUT
  • HIGH GLOSS KITCHEN WITH INTEGRATED APPLICANCES
  • SUMMER HOUSE - BAR AND STORAGE
  • FREEHOLD

Description

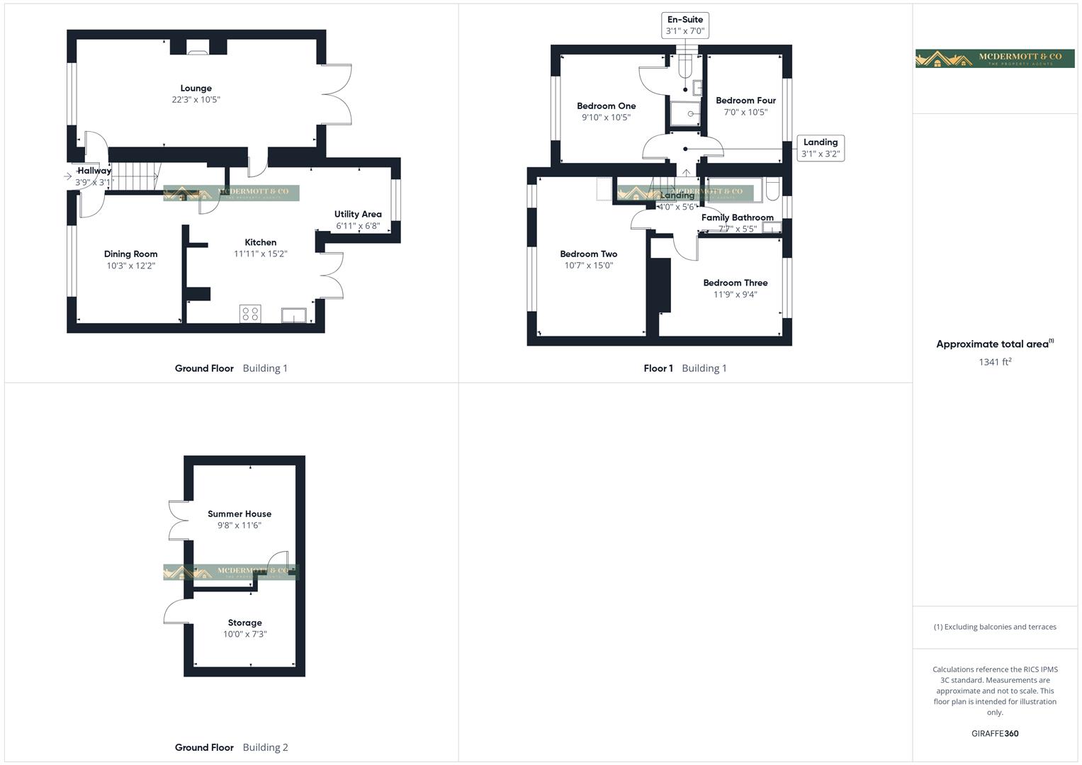
Entrance Hall (1.14m x 0.94m)

Laminate flooring, neutral decor, stairs off, doors leading to lounge and dining room.

Lounge (6.78m x 3.18m)

Front and rear facing, laminate flooring, two radiators, spotlights, electric fire with log effect, fireplace with stone tiled back, neutral decor, leading into kitchen, patio doors leading to rear garden.

Dining Room (3.12m x 3.71m)

Front facing, laminate flooring, radiator, neutral decor, leading into kitchen.

Kitchen (3.63m x 4.62m)

Rear facing, range of fitted wall and base units in dark grey finish with complimentary white worktops. Inset sink and drainer with mixer taps over and hot water tap, built in double electric oven and induction hob with extractor hood over, tiled splashback, laminate flooring, two radiators, under walls unit lighting, storage cupboard, patio doors leading to rear garden.
Island - with dark grey base units and white tops and overlap for breakfast bar seating.

Utility Area (2.11m x 2.03m)

Rear facing, range of fitted wall and base units in dark grey gloss finish with complimentary white worktops, tiled splashback, laminate flooring, integrated fridge, integrated freezer, integrated dishwasher, plumbing for washer. spotlights, neutral decor.

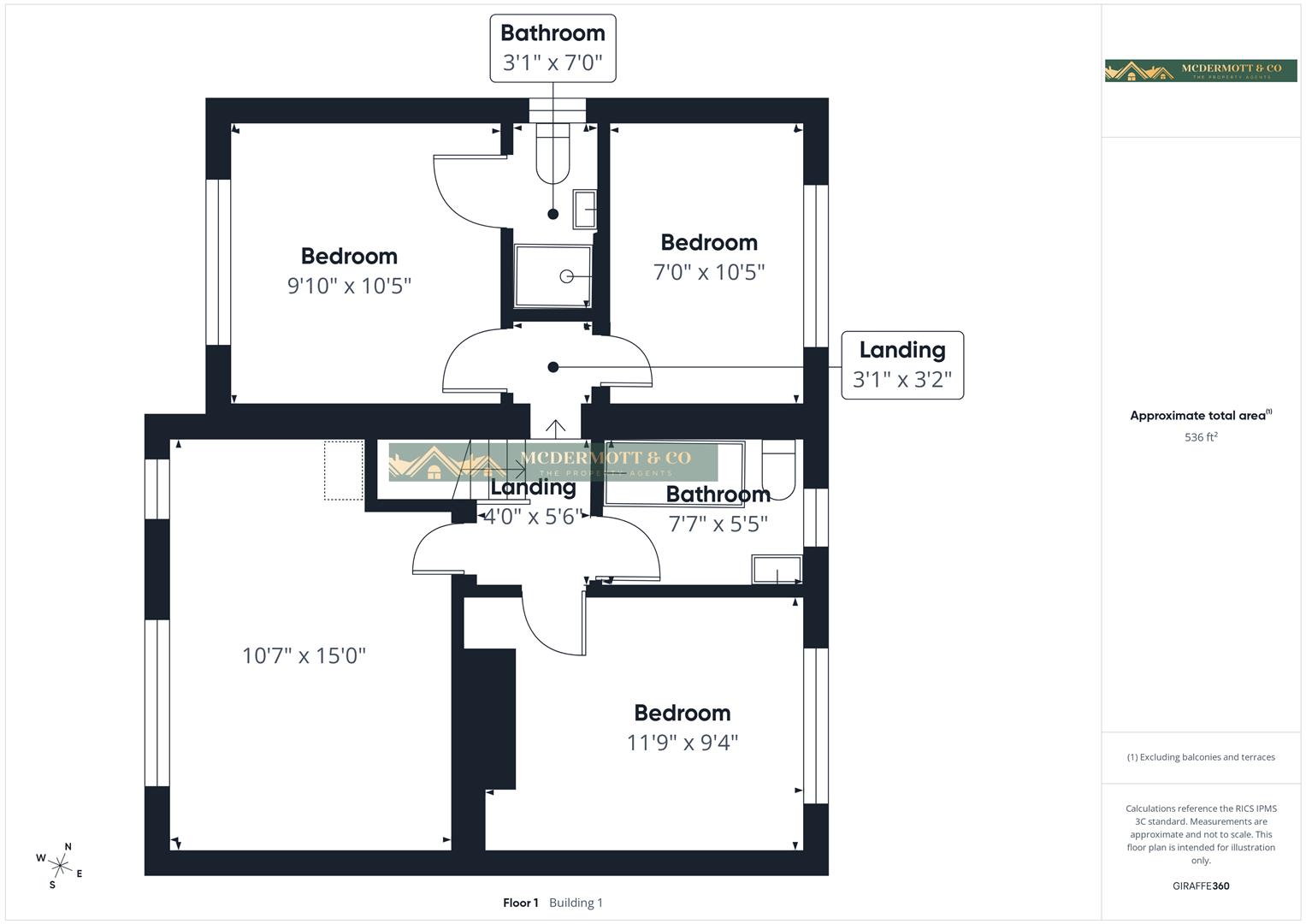
Stairs and Landing

Leading to all fist floor rooms, carpeted, neutral decor - landing carpeted, neutral decor, loft access.

Bedroom One (3.00m x 3.18m)

Front facing, carpeted, radiator, spotlights, neutral decor, leading ton en-suite.

En-Suite (0.94m x 2.13m)

Side facing, three piece bathroom suite in white comprising vanity sink and toilet, shower cubicle with rainfall shower and tiled enclosure, spotlights, vinyl flooring, neutral decor,

Bedroom Two (3.23m x 4.57m)

Front facing, two windows, carpeted, radiator, free standing white three door wardrobe.

Bedroom Three (3.58m x 2.84m)

Rear facing, carpeted, radiator, neutral decor.

Bedroom Four (2.13m x 3.18m)

Rear facing, carpeted, radiator, spotlights, neutral decor, free standing white double wardrobe.

Family Bathroom (2.31m c 2.84m)

Rear facing, three piece bathroom suite in white comprising vanity sink and toilet, shower over bath and glass shower screen, heated chrome towel rail and radiator, fully tiled wall, vinyl flooring, spotlights.

Summer House and Storage (2.95m x 3.51m and 3.05m x 1.91m)

Laminate flooring, spotlights, bar area, wall lights, free standing fridge - storage area - free standing fridge freezer.

External

At the front there is an imprinted concrete driveway and access to side leading to the rear garden. At the rear there is paved area, artificial grassed area and summer house.

Tenure

We have been advised by the vendors that the property is Freehold.

Stamp Duty

Residential property rates
You usually pay Stamp Duty Land Tax (SDLT) on increasing portions of the property price when you buy residential property, for example a house or flat.
The amount you pay depends on:
• when you bought the property
• how much you paid for it
• whether you’re eligible for relief or an exemption
Rates for a single property
You pay SDLT at these rates if, after buying the property, it is the only residential property you own.

You will usually pay 5% on top of these rates if you own another residential property.

Rates from 1 April 2025
Property or lease premium or transfer value SDLT rate
Up to £125,000 Zero
The next £125,000 (the portion from £125,001 to £250,000) 2%
The next £675,000 (the portion from £250,001 to £925,000) 5%
The next £575,000 (the portion from £925,001 to £1.5 million) 10%
The remaining amount (the portion above £1.5 million) 12%
Example
In April 2025 you buy a house for £295,000. The SDLT you owe will be calculated as follows:
• 0% on the first £125,000 = £0
• 2% on the second £125,000 = £2,500
• 5% on the final £45,000 = £2,250
• total SDLT = £4,750


Location


Floorplan

Floorplan Floorplan Floorplan Floorplan Floorplan

EPC

EPC for Grimshaw Avenue, Failsworth

Mcdermott & Co Property Agents - Failsworth Branch