Water Mill Avenue, Chadderton Water Mill Avenue, Chadderton

Water Mill Avenue, Chadderton

3 bedroom Semi-detached house Sold STC

£299,950

  • 3 bedroom
  • 2 bathroom
  • 1 reception

Key Features

  • WELL PRESENTED
  • SEMI DETACHED
  • THREE BEDROOMS
  • DRIVEWAY
  • MODERN KITCHEN/DINER
  • MODERN FOUR PIECE FAMILY BATHTROOM

Description

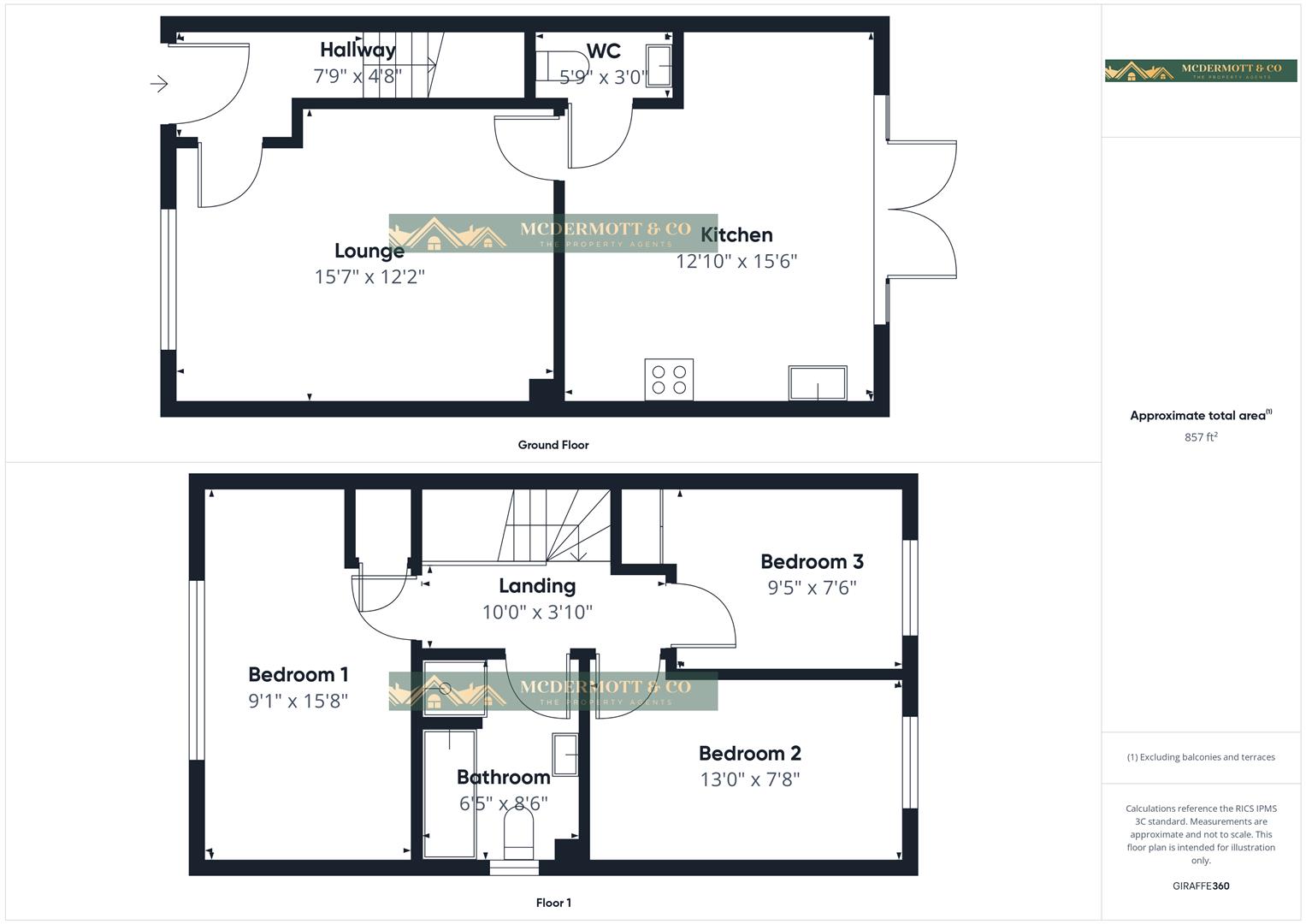
Entrance Hall (2.36m x 1.42m)

Carpeted, Radiator and stairs to first floor.

Lounge (4.75m x 3.71m)

Front facing lounge, carpeted with radiator and single light fitting.

Kitchen (3.91m x 4.72m)

Rear facing kitchen with a range of fitted wall and base units, with a stainless steel sink mixer tap and drainer, gas hob with extractor fan over, double oven, built in fridge freezer, wood laminate flooring with radiator, spot lighting and doors leading to garden.

Downstairs WC (1.75m x 0.91m)

Downstairs WC comprises of low level WC, wash basin, radiator and single light fitting.

Stairs and Landing (3.05m x x1.17m)

Carpeted landing with radiator, doors leading off to first floor rooms.

Bedroom 1 (2.79m x 4.78m)

Front facing bedroom, carpeted with radiator and storage cupboard.

Bedroom 2 (3.96m x 2.34m)

Rear facing bedroom, currently being used as an office and wardrobe space, carpeted with radiator.

Bedroom 3 (2.87m x 2.29m)

Rear facing bedroom, with built in cupboard, radiator and carpeted.

Bathroom (1.96m x 2.59m)

Bathroom comprises of a low level WC, wash basin, bath, separate shower cubicle, stainless steel heated towel rail, part tiled walls, spotlighting,

External

To the front of the property is a driveway for two cars and to the rear of the property is a enclosed garden with lawn and paved area.

Tenure

The property sale includes the Freehold Title.

Stamp Duty

Residential property rates
You usually pay Stamp Duty Land Tax (SDLT) on increasing portions of the property price when you buy residential property, for example a house or flat.
The amount you pay depends on:
• when you bought the property
• how much you paid for it
• whether you’re eligible for relief or an exemption
Rates for a single property
You pay SDLT at these rates if, after buying the property, it is the only residential property you own.

You will usually pay 5% on top of these rates if you own another residential property.

Rates from 1 April 2025
Property or lease premium or transfer value SDLT rate
Up to £125,000 Zero
The next £125,000 (the portion from £125,001 to £250,000) 2%
The next £675,000 (the portion from £250,001 to £925,000) 5%
The next £575,000 (the portion from £925,001 to £1.5 million) 10%
The remaining amount (the portion above £1.5 million) 12%
Example
In April 2025 you buy a house for £295,000. The SDLT you owe will be calculated as follows:
• 0% on the first £125,000 = £0
• 2% on the second £125,000 = £2,500
• 5% on the final £45,000 = £2,250
• total SDLT = £4,750


Location


Floorplan

Floorplan Floorplan Floorplan

EPC

EPC for Water Mill Avenue, Chadderton

Video Tour


Mcdermott & Co Property Agents - Failsworth Branch

Similar Properties

Broadway, Chadderton, Oldham
For Sale

Broadway, Chadderton, Oldham

4 Bed Semi-detached house For Sale
Guide price £419,950
Lowcroft Crescent, Chadderton, Oldham
For Sale

Lowcroft Crescent, Chadderton, Oldham

4 Bed Detached house For Sale
Guide price £410,000
Berkeley Avenue, Chadderton, Oldham
Sold STC

Berkeley Avenue, Chadderton, Oldham

3 Bed Semi-detached house Sold STC
Guide price Offers over £229,950